Spring naar content
typeEengezinswoning
woonoppervlakte183 m2
slaapkamers5
buitenruimteAchtertuin, Voortuin, Zijtuin
bouwjaar2011
energielabelA+++

Brochure

Over de woning

Welkom op de Pergolesilaan 1 in Sliedrecht: een duurzame geschakelde villa waar ruimte, rust én gezelligheid hand in hand gaan. Hier wil je écht even blijven hangen…

Een heerlijk ruime geschakelde woning met maar liefst vijf slaapkamers (en mogelijkheid tot het creëren van zes slaapkamers), een lichte woonkamer en leefkeuken, prettige tuin met zitje aan zij- en achterkant en parkeergelegenheid op eigen terrein.
Energiezuinig? Absoluut! Met energielabel A+++, goede isolatie, een warmtepomp en 18 zonnepanelen zit je hier helemaal goed voor de toekomst.

De gemoedelijke sfeer in de wijk en de kindvriendelijke buurt met speeltuin direct aan de overkant dragen zeker bij aan het woongenot hier. Het is daarom ook niet voor niets dat verkopers hier vanaf de nieuwbouw fijn hebben gewoond.

De buurt is niet alleen lekker rustig, maar toch ook centraal gelegen met het gemak van alles dichtbij: op 5 minuutjes fietsen vind je de winkels aan de Markt van Matena en op 10 minuten fietsen het winkelcentrum de Populierenhof. Om de hoek bevindt zich het treinstation, met snelle verbinding naar Dordrecht en Gorinchem. Verder vind je scholen, sportclubs en uitvalswegen vlakbij.

Kortom: een heerlijke plek voor jong en oud. Kom je het zelf beleven? Geen poespas, deze is écht heel leuk!

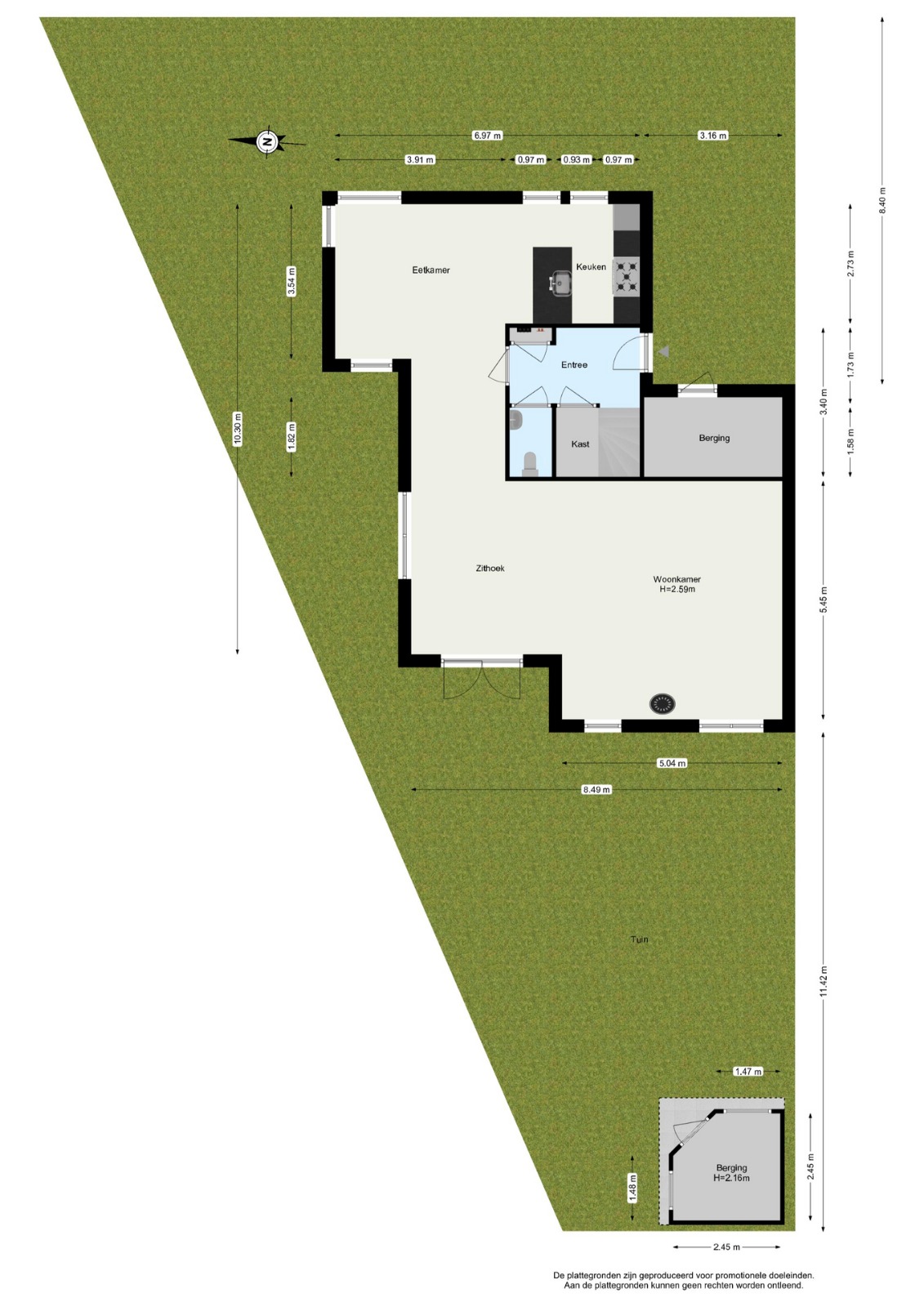
Indeling:

Entree in ruime hal met toilet, trapkast en meterkast (12 groepen + dubbele groep, 3 aardlekschakelaars, krachtstroom, glasvezel aansluiting).
Toilet met fontein, volledig betegeld

Woonkamer aan achter- en zijkant met fijne leefkeuken aan voorzijde. De woonkamer omvat een royale ruimte aan achterzijde en een gezellige doorloop naar de keuken, ideaal voor een leuk zitje.
De woonkamer is voorzien van een plavuizen vloer met vloerverwarming en renovlies wandafwerking en beschikt over een pelletkachel (2023) en dubbele deuren naar de achtertuin.

De leefkeuken beschikt over een keuken in wandopstelling met schiereiland en shutters in kozijnen aan voorzijde. De keuken is voorzien van een inductie kookplaat (2021), afzuiging naar buiten, oven (2021), vaatwasser, koelkast met vriesvak en een Quooker kraan.

De achtertuin is fraai aangelegd en voorzien van een groot terras achter de woning, kunststof vlonderdelen, een elektrisch zonnescherm met steunpunten en een houten berging aan achterzijde. Aan de zijkant bevindt zich tevens een prettig terras en een poort naar de brandgang.
De voortuin is eveneens fraai aangelegd met mooie Leilindes, een eigen oprit en toegang tot de inpandige berging. De berging beschikt over verwarming, elektra en de omvormer voor de zonnepanelen.

1e verdieping:
Overloop met toegang tot alle vertrekken.

Ruime slaapkamer aan voorzijde, voorzien van airconditioning (2023), 2 Franse balkons aan voorzijde, een dakraam en ruime kast en afgewerkt met een laminaatvloer en behang wandafwerking.

Slaapkamer aan achterzijde, voorzien van airconditioning, laminaatvloer en behang wandafwerking.

Slaapkamer aan achterzijde, eveneens voorzien van laminaatvloer en behang wandafwerking.

Slaapkamer aan achterzijde met vide, airconditioning, dakraam aan voor- en achterzijde en bergruimte achter knieschotten.

Badkamer (volledig betegeld) met ruime inloopdouche met thermostaatkraan, toilet, wasmeubel met twee waskommen, spiegels met verlichting, designradiator, radio-installatie en elektrische vloerverwarming.

2e verdieping:
Ruime voorkamer met opstelplaats warmtepomp en boilervat (lucht/water, Daikin, 2023), wasaansluiting, mechanische ventilatie.

Slaapkamer aan achterzijde, voorzien van een laminaatvloer, behang wandafwerking, dakraam en bergruimte achter knieschotten.

Algemeen:
- Ruime en duurzame geschakelde woning met royale woonkamer, leefkeuken, moderne badkamer, 5 slaapkamers en een fijne tuin.
- Eigen grond, 329 m².
- Energielabel A+++, verwarming via warmtepomp (2023), 18 zonnepanelen (2015).
- Alle ramen op de verdieping zijn voorzien van elektrische rolluiken.
- In 2023 zijn 3 slaapkamers voorzien van airconditioning.
- Oplevering in overleg.

De informatie in deze brochure is met de nodige zorg vastgesteld. Aan deze gegevens kunnen echter geen rechten worden ontleend, alle aansprakelijkheid van Maarten Makelaardij is derhalve uitgesloten. Voorts zijn wijzigingen voorbehouden. Alle opgegeven maten en oppervlakten zijn indicatief.

Kenmerken

Financieel
Vraagprijs
€ 769.500,-
Status
Verkocht
Bouw
Soort woonhuis
Eengezinswoning
Soort bouw
Bestaande bouw
Bouwjaar
2011
Dak type
Zadeldak
Oppervlakten en inhoud
Wonen
183 m2
Overige inpandige ruimte
6 m2
Gebouwgebonden buitenruimte
0 m2
Perceel
329 m2
Inhoud
608 m3
Indeling
Aantal kamers
6
Aantal badkamers
1
Aantal slaapkamers
5
Voorzieningen
Voorzieningen
Mechanische ventilatie, TV kabel, Buitenzonwering, Airconditioning, Rookkanaal, Dakraam, Glasvezel kabel, Zonnepanelen
Energie en isolatie
Energieklasse
A+++
Isolatievormen
Volledig geïsoleerd
Warm water
Vloerverwarming gedeeltelijk, Warmtepomp, Pelletkachel
Verwarming
Elektrische boiler eigendom
Buitenruimte
Type buitenruimte(s)
Achtertuin, Voortuin, Zijtuin
Hoofdtuin
Achtertuin
Hoofdtuin opp.
97 m2
Hoofdtuin positie
West
Bergruimte
Soort
Aangebouwd steen
Voorzieningen
Voorzien van verwarming, Voorzien van elektra
Ligging
Parkeer faciliteiten
Openbaar parkeren, Op eigen terrein
Parkeren capaciteit
1
Ligging
Aan rustige weg, In woonwijk

Plattegronden

Ligging en beschikbare woningen in de buurt

Wat klanten zeggen over Maarten: