Spring naar content
typeEengezinswoning
woonoppervlakte108 m2
slaapkamers4
buitenruimteAchtertuin, Voortuin
bouwjaar2013
energielabelA

Brochure

Over de woning

Wat een heerlijke plek om een gezin te starten of uit te breiden!

Deze fijne gezinswoning in de nieuwe wijk Baanhoek-West heeft alles wat je nodig hebt; een fijne woonkamer met open keuken, 4 slaapkamers, een verzorgde badkamer en diepe achtertuin. De woning is lekker ruim opgezet, maar kan ook nog verder worden uitgebreid met het plaatsen van een aanbouw en/of dakkapel. Uitermate geschikt voor een groeiend gezin!

Met energielabel A, een nieuwe CV-ketel en volledige isolatie is de woning goed voorbereid op de toekomst, maar ook hierin kan de nieuwe eigenaar verder uitbouwen, bijvoorbeeld door het plaatsen van zonnepanelen.

De wijk is heerlijk rustig en kindvriendelijk, met een speeltuin voor de deur en basisschool op een paar minuten lopen. Andere voorzieningen zijn eveneens dichtbij te vinden. Zo zijn de winkels aan de Markt van Matena en het winkelcentrum de Populierenhof gelegen op een aantal minuten rijden. Om de hoek bevindt zich tevens het treinstation, met snelle verbinding naar Dordrecht en Gorinchem.

Ruimtelijk, duurzaam en kindvriendelijk wonen, je vind het allemaal aan het Mozartplantsoen!

Indeling:
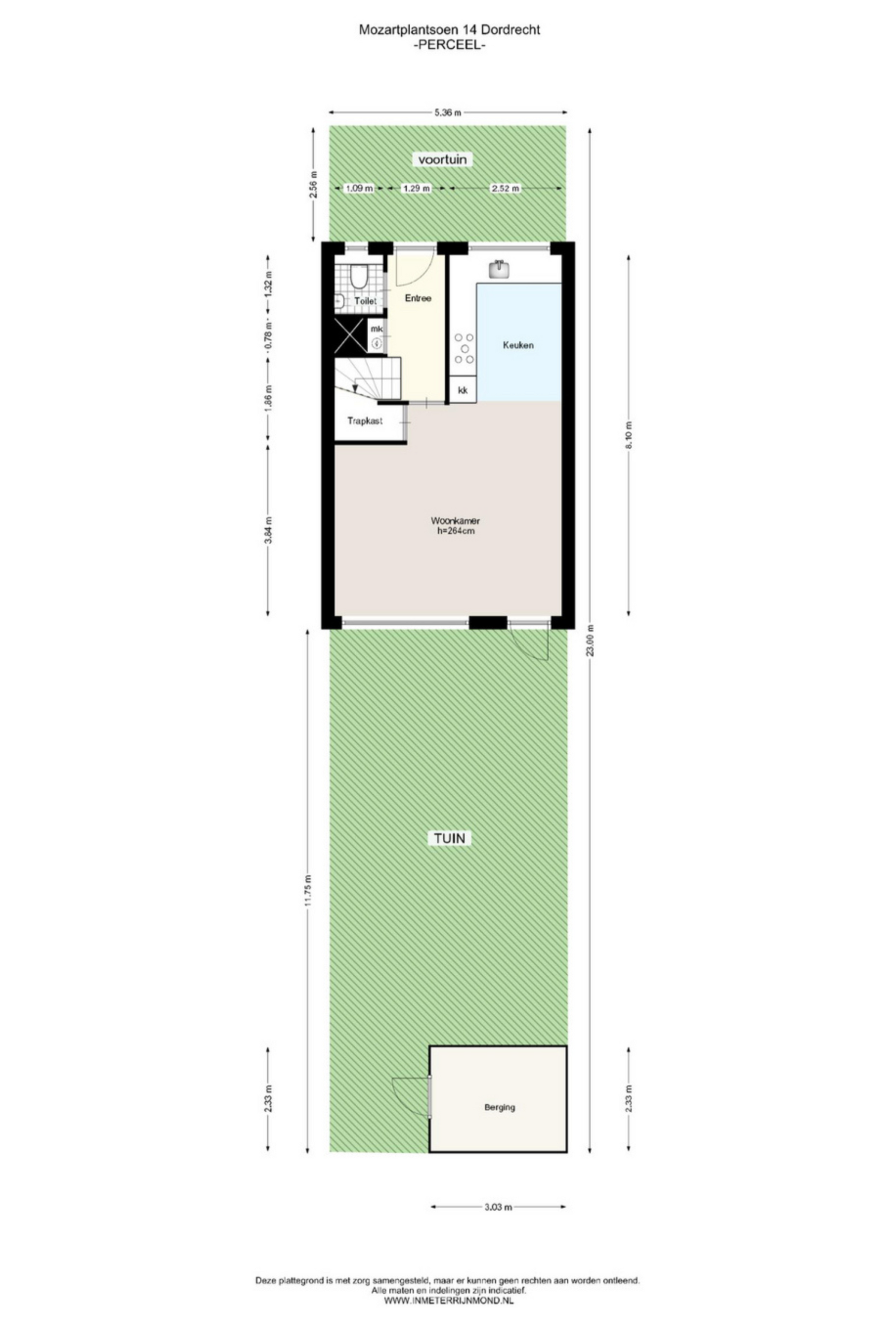
Hal met antracietgrijze plavuizenvloer, meterkast (7 groepen, 2 aardlekschakelaars, slimme meters, glasvezel aansluiting).
Toiletruimte, half betegeld en voorzien van een hangend closet en fontein.

Gezellige woonkamer met open keuken aan voorzijde. De woonkamer is afgewerkt met glasvezelbehang en sauswerk en een nette laminaatvloer. De trapkast biedt veel ruimte voor voorraden, de stofzuiger, kinderspeelgoed, noem maar op!
De keuken in hoekopstelling bevindt zich aan de voorzijde van de woning. De keuken is voorzien van een 5-pit gaskookplaat, afzuigkap, koelkast, oven, vaatwasser en een hardstenen werkblad. De keukenruimte is afgewerkt met een tegelvloer.
Door het plaatsen van een aanbouw bij de woonkamer kan deze ruimte flink worden vergroot. Meerdere woningen in de rij beschikken al over zo'n uitbouw.

Diepe achtertuin gelegen op het noordwesten. De tuin is fraai aangelegd met tegels en deels kunstgras en gemetselde plantenbakken. Achterin de tuin bevindt zich een vrijstaande houten berging en de achterom.

1e verdieping:
Overloop met bergkast en toegang tot alle vertrekken. Voorzien van vloerbedekking.

Ruime slaapkamer aan achterzijde, voorzien van een 3-deurs schuifkastenwand, een nette laminaatvloer en glasvezelbehang.

Slaapkamer aan achterzijde, eveneens voorzien van een nette laminaatvloer en glasvezelbehang.

Slaapkamer aan voorzijde, eveneens voorzien van een nette laminaatvloer en glasvezelbehang.

De badkamer is gelegen aan de voorzijde van de woning, deze is volledig betegeld en voorzien van een hardstenen wastafelblad met dubbele wastafel op een robuust houten meubel, grote spiegel, een ligbad met douchescherm en thermostaatkraan, toilet en mooie shutter als raamafwerking.

2e verdieping:
De zolderverdieping is thans een grote ruimte, in gebruik als werkplek, hobbyruimte, was ruimte en berging. Door het plaatsen van een indeling op deze verdieping, eventueel in combinatie met een dakkapel, zijn hier een of twee slaapkamers te creëren. Verder bevindt zich op deze verdieping de opstelplaats CV-ketel (Intergas, 2024), mechanische ventilatiebox, aansluiting wasmachine en praktische bergruimte achter de knieschotten.

Het dak leent zich uitstekend voor het plaatsen van zonnepanelen, waarmee de woning nog energiezuiniger kan worden!

Algemeen:
- Eigen grond, 131 m².
- Moderne tussenwoning in een kindvriendelijke wijk in Sliedrecht.
- De woning beschikt over vier slaapkamers, door het plaatsen van een dakkapel is een 5e slaapkamer te creëren.
- Energielabel A, voorzien van een nieuwe CV-ketel (2024).
- In 2024 is de woning voorzien van elektrische zonneschermen.
- Oplevering in overleg, voorkeur medio februari 2026.

De informatie in deze brochure is met de nodige zorg vastgesteld. Aan deze gegevens kunnen echter geen rechten worden ontleend, alle aansprakelijkheid van Maarten Makelaardij is derhalve uitgesloten. Voorts zijn wijzigingen voorbehouden. Alle opgegeven maten en oppervlakten zijn indicatief.

Kenmerken

Financieel
Vraagprijs
€ 429.000,-
Status
Verkocht
Bouw
Soort woonhuis
Eengezinswoning
Soort bouw
Bestaande bouw
Bouwjaar
2013
Dak type
Zadeldak
Oppervlakten en inhoud
Wonen
108 m2
Overige inpandige ruimte
0 m2
Gebouwgebonden buitenruimte
0 m2
Perceel
131 m2
Inhoud
385 m3
Indeling
Aantal kamers
5
Aantal badkamers
1
Aantal slaapkamers
4
Voorzieningen
Voorzieningen
Mechanische ventilatie, TV kabel, Buitenzonwering, Dakraam, Glasvezel kabel
Energie en isolatie
Energieklasse
A
Isolatievormen
Volledig geïsoleerd
Warm water
CV ketel
Verwarming
CV ketel
CV ketel type
Intergas
Buitenruimte
Type buitenruimte(s)
Achtertuin, Voortuin
Hoofdtuin
Achtertuin
Hoofdtuin opp.
63 m2
Hoofdtuin positie
Noordwest
Bergruimte
Soort
Vrijstaand hout
Voorzieningen
Voorzien van elektra
Ligging
Parkeer faciliteiten
Openbaar parkeren
Ligging
Aan rustige weg, In woonwijk

Plattegronden

Ligging en beschikbare woningen in de buurt

Wat klanten zeggen over Maarten: