Dordrecht
             ÂAnthonie Camerlingstraat 10
3312 EA
- vraagprijs
- € 187.500,- k.k.
Brochure
Over de woning
Helaas is het niet meer mogelijk om voor deze woning een bezichtiging in te plannen, we kunnen je wel op de reservelijst plaatsen!
Aan het randje van het centrum ligt de Anthonie Camerlingstraat, nog niet zo heel lang geleden hebben we hier een prachtig verbouwde woning verkocht.
Nu bieden we je weer de kans om een woning in deze heerlijke straat te kopen, dit maal eentje die je helemaal in je eigen stijl en smaak kan verbouwen, hoe gaaf is dat!
De woning beschikt over een grote woonkamer en een knusse binnentuin, boven is nu 1 grote ruimte met een soort bergruimte, maar met slimme aanpassingen kun je hier prima 2 of zelfs 3 (slaap) kamers van maken!
De locatie is goed, het pannen dak is in 2003 vernieuwd, goten zijn ook vervangen evenals de CV. De rest is aan jou, we zijn enorm benieuwd naar jullie creatieve plannen.
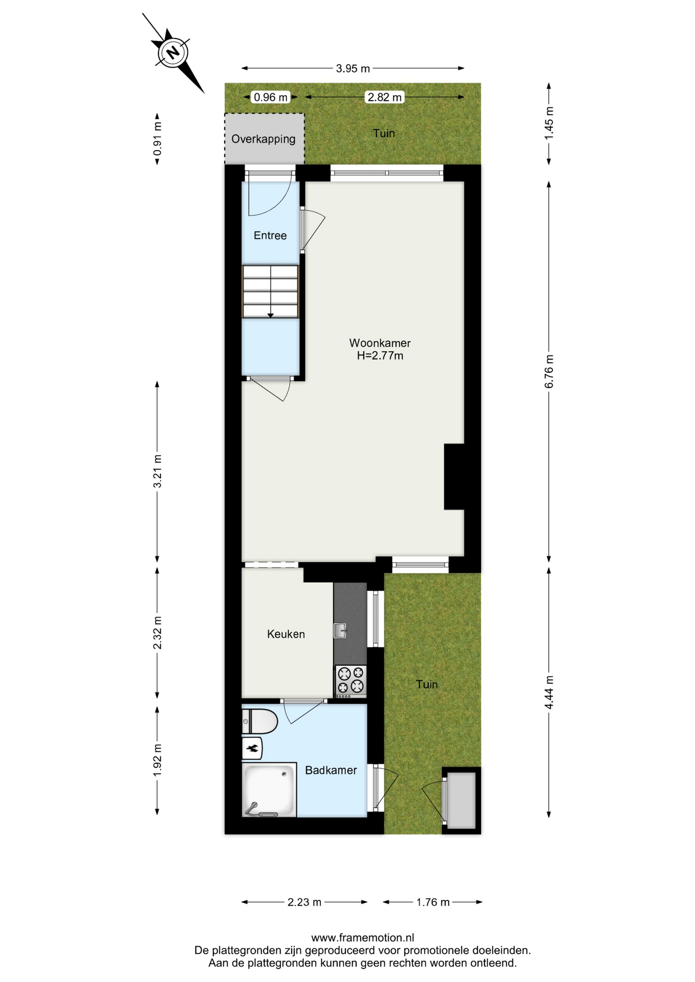
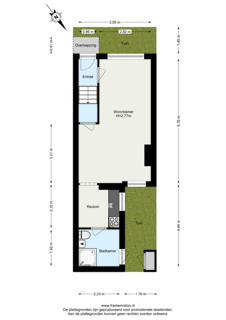
Indeling:
Entree in de hal met meterkast, trapopgang en deur naar de woonkamer.
Meterkast met 1 stop, dag-en nachtstroom.
Heerlijk ruime woonkamer over de gehele lengte van de woning met grote trapkast en zonnescherm aan de voorzijde. Aan de achterzijde is een aanbouw geplaatst met daarin de keuken en daarachter de badkamer.
Het laminaat van de woonkamer is in 2020 nieuw geplaatst. Het raam aan de voorzijde van de woonkamer is een zogenaamd "verhuisraam" en kan gemakkelijk gedemonteerd worden om bijvoorbeeld grote meubelstukken in en uit het huis te tillen.
Keuken met dubbele spoelbak, afzuigkap, oven, losse koelkast en vriezer, 4 pits gaskookplaat.
Badkamer met duoblok toilet, douchehoek, wastafel en meubel. In de badkamer is ook de CV ketel gesitueerd merk Remeha, bouwjaar 2021. Vanuit de badkamer toegang tot de tuin.
Gezellige binnentuin gelegen op het Noord Oosten met tuinkast en kleine overkapping.
Eerste verdieping:
Je komt boven in een grote open ruimte met aan de achterzijde een deur naar het dak van de aanbouw. Er is bergruimte in de nok gemaakt.
Via deze grote ruimte die nu als slaapkamer dient is een kamer bereikbaar die aan de voorzijde van de woning ligt en is vergroot door een dakkapel.
De verdieping is op eenvoudige wijze in te delen in meerdere slaapkamers, net wat jij als trotse koper van deze woning nodig hebt.
Algemeen:
CV ketel vervangen 2021.
Laminaat begane grond 2021.
Pannen en panlatten vervangen in 2003.
Fundering op staal.
Oplevering in overleg, snel is mogelijk.
De informatie in deze brochure is met de nodige zorg vastgesteld. Aan deze gegevens kunnen echter geen rechten worden ontleend, alle aansprakelijkheid van Maarten Makelaardij is derhalve uitgesloten. Voorts zijn wijzigingen voorbehouden. Alle opgegeven maten en oppervlakten zijn indicatief.